Геотехническое строительство и проектирование
Работаем по всей РФ
г. Новосибирск

Модификация слабых и специфических грунтов

компенсационное нагнетание
Описание ситуации:

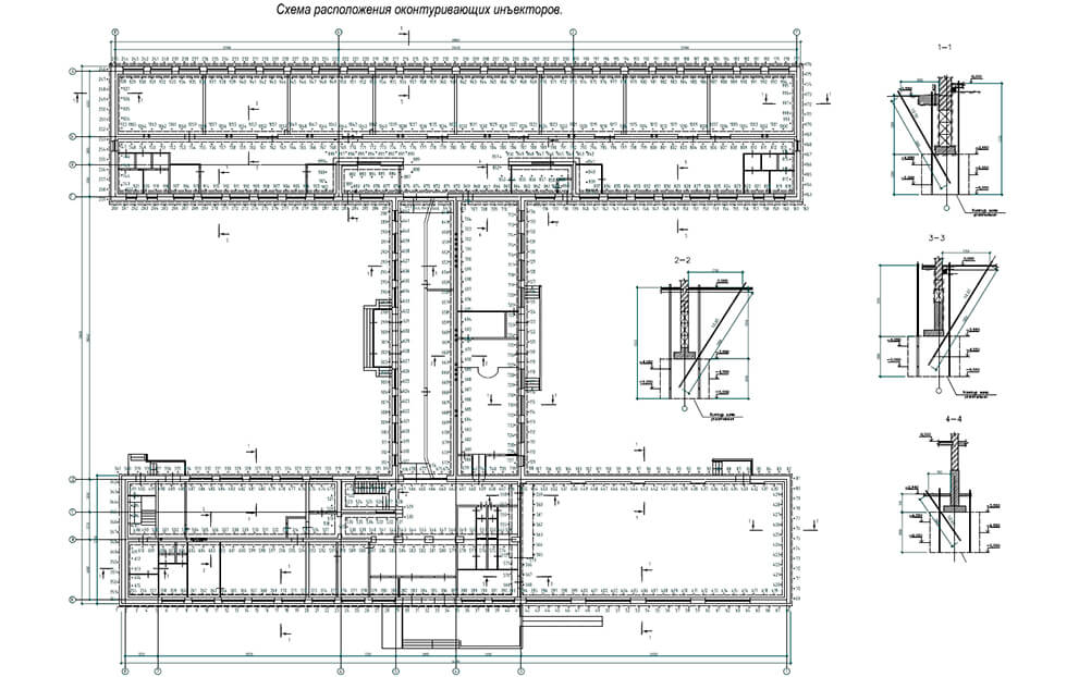
В результате капитального ремонта здания школы, были увеличены нагрузки на основание и фундаменты, в следствии чего несущая способность основания фундаментов оказалась не обеспечена.
Усиление грунтов основания при капитальном ремонте школы в г. Обь
Разработаны и реализованы мероприятия по усилению грунтов основания методом компенсационного нагнетания твердеющих растворов, обеспечивающие требуемое увеличение физико - механических характеристик грунтового массива. Данные мероприятия позволили уменьшить объем строительно - монтажных работ по усилению фундаментов и сократить сроки капитального ремонта.
компенсационное нагнетание
компенсационное нагнетание